Камін в квартирі або будинку – це завжди модно і стильно, і затишно. Практично в будь-який інтер’єр каміни з листів гіпсокартону ідеально впишуться. Тим паче, що їх облицювання може гармоніювати з особливостями того чи іншого інтер’єру.
Камін з гіпсокартону своїми руками зможе побудувати кожна людина, що має навіть елементарні знання в роботі з цим матеріалом. Все, що вам знадобиться, це якісний інструмент, коректно складений проект, вміння працювати з ГКЛ і бажання отримати висококласний результат.
Багатьом здається, що камін з гіпсокартону в будинку або квартирі – це тема для замилювання очей, гарний хід, щоб похвалитися капіталами. Насправді, так думають тільки скептично налаштовані люди і ледарі, які не хочуть зрозуміти, що і у них вдома може бути камін з гіпсокартону за невеликі гроші. У таких людей прокидається почуття заздрості і в кінцевому підсумку ми чуємо подібні висловлювання. На нашу ж думку, якісно побудований штучний камін з гіпсокартону – це оригінальний декор і чудовий прийом, що допомагає нам створити додатковий затишок і комфорт нашого житла. Розташований у вітальні або спальні камін може принести не тільки радість спостереження дорогого об’єкта оформлення у себе вдома, але ще і можливість отримувати справжнє тепло, що зігріває прохолодними вечорами.
Переконувати когось у необхідності такого елемента ми не будемо, а просто розкажемо для кожного охочого, як зробити камін з ГКЛ.

Інструменти
Довго розповідати про спеціальних наборах інструментів і дорогі бренди немає ніякого сенсу, адже тут можна використовувати інструмент, який ми зазвичай застосовуємо для роботи з гіпсокартоном. Зверніть увагу на те, що інструмент для гіпсокартону може бути і не професійним, але якщо у вас є можливість попрацювати серйозною технікою, то не пропустіть шанс, адже процес піде легше і швидше. Дискова пила або болгарку, перфоратор та шуруповерт, просікач і шпателі – загалом, все те, що ми використовували і раніше, коли будували арку з гіпсокартону, ніші в стіні і інші декоративні елементи.

Вибір оформлення та декорацій
Побудувати повноцінний камін можливо не в кожному будинку, а про квартири тут і взагалі мови бути не може. Тому нам необхідно добре подумати, перш ніж почати будівництво, адже відштовхуватися при спорудженні каркаса каміна і його обшивання ми будемо і від розмірів того обладнання, яке буде всередині каміна.
Критерії вибору дизайну конструкції:
- За великим рахунком, якщо це буде середнього розміру камін, можна встановити в глибину каміна невеликий плазмовий монітор, на який ви будете передавати анімацію або відео язиків полум’я з найближчого ПК або ноутбука.
- Якщо камін буде маленького розміру, можна заощадити і встановити всередину фоторамку, яка буде виконувати ті ж функції, що і монітор показувати нам вогонь.
- Якщо ж ви хочете максимально наблизитися до натурального вигляду, встановіть готовий портал електричний камін, який можна встановлювати в будь-якому приміщенні, природно, дотримуючи всі необхідні вимоги. Такий камін буде вже не тільки показувати нам вогонь, але і давати тепло, яке так необхідно будинку.
- Споруджуючи фальш-камін з гіпсокартону для звичайного декору приміщення, ви можете не замислюватися про полум’я і тепло від каміна, адже портал каміна з гіпсокартону завжди можна встановити красиві свічки. Добрий десяток масивних і низьких свічок хай і не дасть необхідної кількості тепла, але красиво освітить камін і кімнату в нічний час, захопить грою полум’я і приємний аромат.

Як побудувати своїми руками
Сьогодні ми постараємося відповісти на дане питання так, щоб навіть новачок легко зрозумів алгоритм і вже через тиждень пишався своєю роботою. Чесно кажучи, робота кропітка, але при бажанні все можливо.
Як підібрати місце
Каміну з гіпсокартону ще й потрібно знайти гарне місце. У великому приміщенні це може бути середина поздовжньої стіни. При бажанні можна спорудити і декоративний димохід, надавши конструкції ще більшу реалістичність.
У маленькій квартирі влаштуйте кутовий маленький камін з ГКЛ своїми руками. Він буде доречним на невеликому метражі, і може також виконувати функцію майданчика для сувенірів, скриньок і т. д.
Вибір місця, покрокова інструкція:
- В першу чергу, вибираємо приміщення, де буде розташований камін.
- Далі визначаємося з місцем в кімнаті, де є камін буде зводитися.
- У великому приміщенні камін розташовується біля поздовжньої стіни, посередині, прикрашається фальш-димарем і декором.
- У приміщенні малої площі завжди можна встановити кутовий камін з гіпсокартону.
- Місце під камін вибирається з урахуванням власних бажань і технічних вимог приміщення.
Не варто розміщувати камін в важким місцях, наприклад, біля шафи, перед радіаторами опалення, біля дверей і так далі, адже цим ви тільки збільшите кількість питань, які необхідно буде вирішувати.

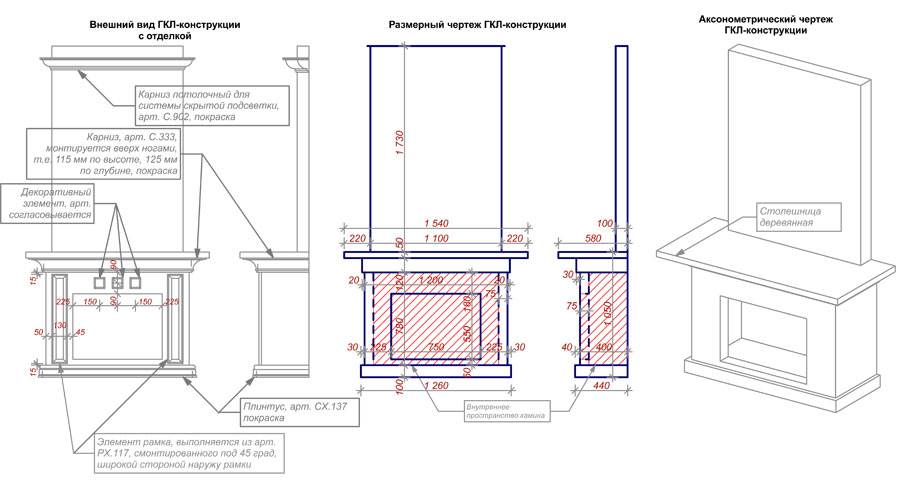
Креслення
Почніть процес створення каміна з ескізу. Відмінно, якщо їх буде декілька. Якщо самому зробити це складно, роздрукуйте готові ескізи з Інтернету. Ну а на основі вподобаного ескізу вам нескладно буде зробити креслення (шкільних навичок креслення достатньо).
Також рекомендуємо прочитати:Короб з гіпсокартону своїми руками
Стіни з гіпсокартону своїми руками
Підйомник для гіпсокартону своїми руками (креслення)
Дизайн арки з гіпсокартону для кухні: складні конструкції в інтер’єрі
Ідеально, якщо зробити креслення в натуральну величину. Візьміть аркуш ватману, довгу лінійку, м’який олівець. Потім креслення потрібно прикласти до місця, де буде камінна конструкція з гіпсокартону, помістити його в раму і прискіпливо оглянути. Якщо все влаштовує, можна робити макет, а вже потім споруджувати штучний камін з ГКЛ своїми руками.
Найбільш правильно буде розпочати виготовлення каміна з гіпсокартону саме з ескізу – креслення на великому аркуші паперу, приміром, на ватмані. Постарайтеся розглянути до початку замальовок справжні каміни в натуральну величину, уявити, як вони виглядатимуть в тому місці, де ви збираєтеся встановлювати елемент декору.
Відштовхуючись від вимог дизайну і власної фантазії, зробіть ескіз загального виду, далі проставте розміри, зіставте їх з можливостями приміщення.
Пам’ятайте, імітація каміна з гіпсокартону – це практично самостійна, капітальна споруда, в той же розмір і формат, форми і рельєф, а тому відразу продумайте кожну деталь і внесіть їх в проект каміна з гіпсокартону.

Макет
По завершенню проекту, професіонали рекомендують зробити ще і макет, за допомогою якого ви зможете повністю реалістично побачити не тільки дизайн каміна з гіпсокартону, але і помітити кожну свою помилку, а повірте, спочатку їх буде багато.
Для виготовлення макета використовуйте звичайний пінопласт і клей ПВА, що обійдеться вам в копійки, але завдяки даним недорогим матеріалами ви зумієте все прорахувати дуже точно, і не додати собі проблем на етапі зведення каміна.
Виготовлення: поетапна інструкція
Застосувавши власний досвід у роботі з гіпсокартоном, а також отримавши кілька слушних порад від знайомих майстрів, ми склали для вас спеціальну інструкцію, за допомогою якої справа піде швидше, а результат стане якіснішим.
Короб і каркас
Досить серйозний етап нашої роботи, адже від короба, його загальної якості, надійності і стійкості, буде залежати успіх справи по завершенню.
Каркас для каміна з гіпсокартону ми зводимо із стандартного профілю, використовуючи направляючий або напрямний і стієчний профіль металевий. Тобто, створюємо звичайний короб, який повинен відповідати раніше проставленим на кресленні розмірами, бути добре закріплений до стіни і підлоги, мати зверху міцну основу для декоративного оздоблення та встановлення верхньої частини каміна (якщо ви не збираєтеся зводити фальш-димар над каміном).

Всі площини обов’язково перевіряйте схилом і рівнем, щоб не було навіть найменших відхилень, які можуть пустити весь наш проект під укіс. Намагайтеся робити все не поспішаючи, і в результаті отримати короб у формі паралелепіпеда.
Пам’ятайте, що всі розміри повинні бути строго дотримані, і не тільки зовнішні, але і внутрішні, адже якщо десь допустити помилку, то електричний камін в короб вже може і не стати, або не влізти плазмовий монітор і так далі. Не забудьте і про те, що необхідно завести кабелі електроживлення в короб заздалегідь.
Каркас і обшивка покроково:
- На стіну, яка зазнала обробки, встановлюєте профілі. В бетонну стіну попередньо монтуються дюбелі.
- Після того, як каркас зроблений, його потрібно обшити листами гіпсокартону. Матеріал відміряйте і наріжте болгаркою.
- Стики плит обов’язково підсильте профілями, це зміцнить каркас конструкції.
- Все решта, зайві частини ГКЛ відріжте.
- Закріпіть шви саморізами і дуже добре зашпаклюйте. Краї листів перед шпаклівкою обробіть, робиться це абразивом.
Обшивка
Наступним етапом у нас йде облицювання каміна гіпсокартоном. Якщо передбачається стандартний, простий декор в майбутньому, обшити камін ГКЛ можна в один шар, використовуючи саморізи. Якщо ж декор буде складним і важким, зробіть обшивку короба в два шари ГКЛ.
Оздоблення
Тут нам може знадобитися додаткова щабель з профілю, адже не кожен захоче бачити перед собою камін у єдиній площині, комусь буде набагато цікавіше встановити масивне підставу, покласти туди декор з колод і камінних приналежностей.

Полиця
Як ми і говорили вище, якщо не буде фальш-димоходу, слід встановити полку з ГКЛ. Її можна поставити на готовий короб, але бажано зробити полицю в два листа, так як на неї згодом ви захочете поставити фотографії, вази, свічки, загалом, додатковий декор. Якщо полиця буде займати серйозне декоративне місце і виходити за рамки готової ширини каміна, її краю необхідно підтримати додатковими упорами з профілю, які також необхідно буде задекорувати в майбутньому.

Шпаклівка
Тепер у нас процес, який багатьом не подобається, але ми, за допомогою своїх статей, вже постаралися зробити його максимально зручним та швидким. Шпаклівка каміна відбувається з урахуванням навіть найвіддаленіших ділянок, всередині і зовні, зверху і знизу, праворуч і зліва. Крім того, шпаклівка гіпсокартону повинна бути проведена за всіма правилами, з використанням стрічки, перфоугла та затирання.
Оздоблення каміна гіпсокартоном відбувається по типу робіт, які ми розглядали раніше. Уявіть, що це ніша під камін з гіпсу, і тоді все пройде набагато легше.

Декорування
Креслення фальш-камін з гіпсокартону, створення якісного каркаса і оформлення каміна гіпсокартоном – це тільки половина шляху, який нам необхідно було пройти, адже попереду у нас наведення краси і створення саме того зовнішнього вигляду каміна, який повинен задовольнити наші бажання і вимоги стилю приміщення.
Портал
Найважливіший елемент декору будь-якого каміна, так як портал – це, по суті, фасад каміна, який буде у всіх на виду. Оформити ви його можете абсолютно будь-яким матеріалом, так як нам не потрібно підбирати декор під певні вимоги і характеристики. Це може бути плитка, штучний камінь, ковка, гіпсова обробка, фарбування, цегла, мармур і так далі.
Портал несе серйозну естетичну навантаження, адже саме він є камін стилю приміщення і допомагає йому гармонійно вписатися в інтер’єр, тому поставитися до оформлення порталу краще серйозніше.
Установка будь-якого матеріалу на фасад каміна залежить від його характеристик, але для фальш-каміна краще використовувати легкі матеріали, щоб полегшити роботу, і не навантажувати конструкцію.
Це може бути стандартний обклеювання, закладення швів, загальний легкий декор фарбами.

Підніжком і ступінь
Якщо ви зробили короб під щабель, це дуже добре, так як у подібній конструкції вона дуже потрібна. Ступінь і підніжжя каміна будуть нести більше психологічне навантаження і наближати елемент декору до натурального.
Штучний камінь або мармур, цегла або плитка – вибирайте, що більш зручно для вас і інтер’єру приміщення, але не забувайте доводити декор ступені і підніжжя до кінця. Встановіть приналежності, ковані грати, покладіть кілька полін на щабель.

Декор полиці
Саморобні каміни з гіпсокартону часто прикрашаються полицями, на які згодом встановлюються різноманітні фігурки, свічки, фото, дзеркала, сервізи та інший декор. Про встановлення полки ми вже піднімали питання, а тому йдеться тільки про декоруванні. Постарайтеся максимально наблизити обробку полиці каміна до порталу і ступені, щоб весь фасад конструкції був в єдиному стилі.
Декоративні каміни з гіпсокартону – один з більш складних і більш помітних елементів оформлення будь-якого приміщення, будь то спальня квартири або вітальня дачного будинку. Приклавши деякі зусилля до створення подібного декору, ви отримаєте незабутні враження від роботи, і результат, який буде радувати довгі роки.

Електрокаміни
Електрокаміни робляться за тим же принципом. Конструкція повинна мати каркас, який робиться з металевих профілів. Скріплюються ці профілі так званими «клопами».
Далі дієте так:
- Стіну, до якої будете кріпити каркас, покриваєте жароміцним матеріалом;
- Тепер можна фіксувати каркас – починається цей етап з кріплення подіуму, а потім виділення порталу для топки;
- Каркас обов’язково варто посилити, адже електричні каміни з короба гіпсокартону не самі легкі конструкції – тобто, стієчні профілі прикріплюються на підставу через 20 см;
- Перед обшивкою слід етап проведення електропроводки;
- У внутрішній стіні порталу прорезаете декілька отворів – це майбутні витяжні ходи;
- Потім слід обшивка, гіпсокартон зміцнюєте оцинкованими куточками;
- Конструкція камінів з гіпсокартону піддається грунтовку і шпаклівку.
Залишилося найвідповідальніше – встановити штучний електричний камін. Робіть це по інструкції, прикладеної до електроприладу. Потім проведіть до каміна багатожильний кабель з подвійною ізоляцією. Наявність металевої гофри обов’язково.
Подібний камін з гіпсокартону своїми руками потребує встановлення окремої розетки.
Ну а декорувати камін можна чим завгодно – штучний камінь залишається традиційною обробкою гіпсокартонної конструкції. Кріпиться він на клейову суміш.
Звичайна штукатурка також не втрачається своєї актуальності, але її доведеться покрити або лаком або фарбою.
Завершуючи наш огляд, ми хотіли б нагадати і про безпеку подібних конструкцій. В виду того, що ми будували фальш-камін, а не оригінал, безпеки його ми не приділяли серйозної уваги, але якщо ви будете встановлювати в нішу каміна з гіпсокартону електричний камін, то подбайте про правила безпеки. Для цього можна просто обшити камін зсередини вогнестійким гіпсокартоном і облицювати камін матеріалами, що не підтримують горіння. В принципі, цього буде цілком достатньо, тим більше за умови, що підключення каміна буде зроблено професійно.

Прості поради, як зробити камін з гіпсокартону, цілком здатні допомогти вам обуютить своє житло. А зручне крісло, м’який плед, журнальний столик довершать композицію, зробивши це місце улюбленим для домочадців.
Камін з гіпсокартону (відео)
Галерея: камін з гіпсокартону (20 фото)




















