Дуже часто перед будівництвом будинку майбутні новосели хочуть з’ясувати, який матеріал краще всього використовувати для будівництва. Сьогодні одним з найбільш прийнятних, щодо недорогих і зручних матеріалів є каркасні блоки. Будівництво будинків дуже витратний, трудомісткий і довгий процес, але каркасно-блокові будинки зводять їх до мінімуму. Взагалі, будівництво каркасного будинку, передбачає економію не тільки грошей, але й часу. Він легкий по своїй вазі, його зводять у короткі терміни, і він не вимагає величезних вкладень грошей. В першу чергу, давайте порівняємо характеристики каркасно-панельного, цегляно-блочного або бетонного будинку, з’ясуємо всі плюси і мінуси будівлі каркасного споруди.
Будівництво каркасно-панельного будинку, його переваги
Зміст статті
- 1 Будівництво каркасно-панельного будинку, його переваги
- 2 Будівництво фундаменту
- 3 Будівництво, планування і кладка стін каркасно-панельного будинку
- 4 Будівництво і монтаж даху
- 5 Монтаж конструкції підлоги і його утеплення
- 6 Особливості обробки каркасно-панельного будинку
- 7 Приклад проекту каркасно-панельного будинку
- 8 Відео
Головною перевагою каркасного типу споруди є зручність і швидкість будівництва з самого початку. Такі споруди можуть бути виготовлені за 3-4 місяці, так як вони досить прості в збірці, їх можна навіть порівняти з конструктором «Лего».
Проект каркасного будинку розробляється з урахуванням смаків, потреб та можливостей замовника, його стіни можуть виготовлятися монолітно прямо на заводі.
Дуже важливо забезпечити новий житловий будинок хорошою вентиляцією. Цегляно-блокові і панельні будинки будуються досить довго, вимагають забезпечення несучими стінами, об’ємними витратами на будівництво, оплати робітникам та багатьох інших факторів.
На відміну від них, каркасно-блокові будинки легко будуються з серії несучих колон, при цьому вони можуть мати красиві об’ємні елементи і завдяки невеликій вазі — легкий монолітний фундамент.
Каркасно-блокові будинки легко прикрасити:
- мансардою;
- балконами;
- еркерами;
- елементами зовнішнього декору.
Планування в середньому займає від декількох днів до тижня. Надійність і якість блочно-каркасного будинку нітрохи не менше, ніж у бетонного або цегляно-блочного, цей тип споруд довговічний і стійкий при дотриманні правильної технології споруди.
Схема пристрою каркасно-панельного будинку
Терміни спорудження каркасно-блокових будинків коливаються від 3 до 4 місяців.
Якщо будинок виконується за канадською технологією, то монолітно побудовані плити не вимагають додаткових зусиль та праці в монтажі.
Його відмінні мінуси — це термін експлуатації, який варіюється від 30 до 100 років. Звичайно, такий житловий будинок не буде стояти століттями, як кам’яний тип будівлі, але для одного або двох поколінь цілком прослужить економічним варіантом житла.
Будівництво фундаменту
Блочний будинок будується на легкому фундаменті, який не проходить стадії усадки, як у цегляно-панельного будинку. Однак він служить гарним і довговічним підставою. Для будівництва приватного споруди зазвичай застосовується малозаглиблений тип фундаменту. Його ціна мінімальна, він також може бути побудований своїми руками.
Пристрій мелкозаглубленного фундаменту
Планування фундаменту під одноповерхові будинку і для будинків в кілька поверхів різноманітна. Для того щоб звести монолітний фундамент під одноповерхові будинки, визначають місце і створюють план ділянки, його поверхня вирівнюється і розмічається.
Потім відбувається риття траншеї, гідроізоляція і тільки після цього встановлюється опалубка. Звичайно, армування фундаменту необхідно навіть для такої будови, як каркасно-блочний.
Останній етап спорудження фундаменту своїми руками включає в себе заливання бетонної сумішшю і сушку. На сьогоднішній день існує величезна кількість інформації про те, як побудувати монолітний фундамент для будинку своїми руками, незалежно від того, який тип будинку ви збираєтеся зводити.
Однак, слід врахувати ще до будівництва, що мінуси малозаглибленого фундаменту полягають у відсутності можливості його використання під інші конструкції стін.
Схема пристрою стрічкового фундаменту з утеплювачем
Якщо ви надумаєте побудувати житловий цегляний будинок, то доведеться закладати фундамент заново. Можливо, набагато вигідніше побудувати монолітний фундамент з звичайним заглибленням, якщо у вас в планах перебудувати будинок в найближчі 10-20 років.
Будівництво, планування і кладка стін каркасно-панельного будинку
Проект зведення каркасно-панельного будинку передбачає кладку заготовлених заздалегідь стін.
Зазвичай, каркасно-блочний тип будинку збирають з трьох основних видів технологій:
- каркасно-блокова;
- каркасна;
- панельна.
Каркасний тип стін і їх планування полягає у використанні для монтування основного каркасу серії огороджувальних елементів та перегородок. На відміну від нього, панельні стіни не потребують будь-яких додаткових підсилень.
Схема пристрою дерев’яної каркасно-панельного будинку
Каркасно-блокові стіни вимагають обидва характеру зведення — незважаючи на те, що є несучими, все ж потребують додаткового посилення. Тут знадобиться дерев’яний каркас. Таким чином, відбувається не тільки зміцнення блоків, але і додаткове утеплення.
На сьогоднішній день найбільш затребуваними стали серії монолітно-об’ємних блоків з ОСП. Вони легкі і склеюються між собою екологічно чистими матеріалами.
Схема вузлів, зчленування, розмітки і кріплення складових елементів каркасно-панельного будинку
З першого погляду може здатися, що такі стіни пожежонебезпечні і недовговічні. Насправді, при будівництві будинку з каркасних блоків всі несучі елементи ретельно обробляються противогорючими сумішами, включаючи утеплення, які запобігають загоряння.
Додатково до цього, кріпляться вогнестійкі матеріали в якості обшивки, що підвищує вогнестійкість і наближає дані до рівня цегляно-блочного будинку. Так що, думка багатьох людей про те, що дерев’яний будинок легко запалюється — всього лише міф.
Пристрій фронтону каркасно-панельного будинку
У тому випадку, якщо планування і подальша будівництво такого будинку буде виконуватися своїми руками, то необхідно врахувати, що найкраще для обшивки підійдуть листи ГКЛ. Їх накладають в 2 шару після того, як всі каркасні елементи були оброблені вогнезахисними розчинами, просушені і здійснено їх додаткове утеплення.
Обшивати будинок найкраще листами гіпсокартону, причому в 2 шари.
Будівництво і монтаж даху
Монтаж даху каркасно-панельного будинку краще всього здійснювати за допомогою кроквяної системи. Цей тип даху легко зробити своїми руками.
Залежно від конструкції будинку, встановлюють два типи стропилового покриття:
- похиле;
- висяче.
Висяча система покриття має свої мінуси, вона не підходить для великих будівель і може провиснути. Перша більш надійна, її вибір є обов’язковим, якщо будівля має широкий формат. В такому разі, вона не провисає і зміцнюється спеціальною опорою в разі необхідності.
Основні типи кроквяних систем для каркасно-блокових будинків
Потрібно придбати додаткові матеріали для кріплення, такі як: оцинковані цвяхи, кронштейни, металеві скоби і шпильки. Для початку потрібно буде прикріпити брус до несучих стін, для рівномірного розподілу навантаження.
Опорний брус має розміри 150 на 150 мм, кріплення здійснюється після вимірів на основу бетонного вимощення, покритого руберойдом. Далі потрібно встановити серії крокв з торцевих боків на відстані не більше 1,5 м. При монтажі крокв необхідна обв’язка знизу, що служить підставою перекриття горища.
Наступний етап являє собою обрешітку, яка поділяється на два типи:
- суцільна;
- прореженная.
Перша застосовується у випадку, коли покриття буде рулонним і м’яким. Прореженная система решетування підійде для всіх інших типів покрівлі. Розмір між елементами решітки потрібно розраховувати, виходячи з розмірів плиток покрівельного матеріалу.
Конструкція стандартної покрівлі каркасно-панельного будинку
Коли решетування закінчена, приступаємо до гідроізоляції і робимо утеплення покрівлі. Після завершення серії робіт по монтажу даху, слід завершальний етап — вибір настилу покрівлі. Їм може послужити металочерепиця, яка коштує недорого, ефективна в експлуатації і довговічна.
Монтаж конструкції підлоги і його утеплення
Найчастіше підлога в каркасних будинках укладається відразу ж після укладання фундаменту. Багато фахівців радять використовувати деревину як матеріалу для монтажу. Якщо ви кладете підлога своїми руками, то використовуйте дошки товщиною близько 50 мм, а їх відміряйте ширину рівній ширині фундаменту.
Приклад схеми пристрою підлоги в каркасно-блочному будинку
Перед тим, як укладати брус, роблять гідроізоляцію за допомогою руберойду. Потім розмічають отвори для анкера і просвердлюють. Якщо ширина будівлі більше 3 метрів, то підлога потребує встановлення додаткових опор.
У цій ролі виступають стовпи, для їх створення використовують звичайний червона цегла, а для основи — бетон з арматурної сіткою. Після того, як дерев’яний брус закріплений і монтований, на підлогу потрібно постелити утеплення у вигляді наповнювача.
Між дошками укладають повітропроникний утеплювач, наприклад, ековату. Ековата укладається в підлогу між брусами, але не утрамбовується.
Схема звукоізоляції дерев’яних перекриттів
Далі, підлога покривається паронепроникною мембраною і потім до нього кріпиться настил. На цьому етапі важливо визначитися, чи буде в будинку тепла підлога. Тепла підлога зазвичай закладається на спеціальне гумове підставу, зверху проводяться трубки, що підніме рівень приблизно на 5-10 див.
Далі підлога покривається фінальним завершальним шаром покриття. Тут вибір залежить від смаку, підлога може бути покритий:
- лінолеумом;
- ламінатом;
- каменем;
- плиткою;
- деревом.
Пів будинку — це важлива складова, навіть своїми руками він повинен бути застелена ретельно, адже в подальшому він повинен відповідати внутрішньому дизайну та оздобленню.
Особливості обробки каркасно-панельного будинку
Оздоблення фасаду будинку, мабуть, самий цікавий момент в будівництві. Тут можна знайти величезний асортимент матеріалів, вибрати будь-легкий і найбільш доступний варіант.
В якості обробки можуть бути використані фасадні панелі з серії самих різних матеріалів:
- обшивка деревом;
- сайдингом;
- фіброцементними панелями, які імітують цегляно-блокову кладку.
Можна також вибрати облицювальна цегла або при величезному бажанні, обштукатурити фасад. Все це легко виконати своїми руками, так як готовий облицювальний матеріал найчастіше являє собою блоки, які легко збираються і кріпляться до стін будинку. Можна також використовувати облицювальну цеглу для надання будівлі виду, виконаного з цього цеглини.
Довідкові властивості фіброцементних плит і панелей
Плюси такої облицювання — це додаткове утеплення стін. Крім того, будинок з монолітно встановленої мансардою може бути обделан різної облицюванням, все залежить від ваших уподобань. Далі на картинці, представлений приклад серії продукту облицювальної цегли.
Приклад проекту каркасно-панельного будинку
Приклад виконаного проекту каркасно-панельного будинку легко знайти в інтернеті. Якщо вам потрібен готовий креслення, то перш, ніж приступити до вибору, врахуйте кількість майбутніх мешканців. Таким чином, вираховується корисна площа будинку.
Наприклад, для невеликої сім’ї з 2-3 чоловік досить побудувати будинок не більше 100 квадратних метрів. Якщо ж передбачається проживання більшої кількості людей, то з серії проектів будинку слід вибирати двоповерховий. Також слід врахувати розмір ділянки.
Якщо його площа не дозволяє побудувати широкий каркасний будинок, то можна вибрати проект з мансардою або балконами. Це суттєво полегшить як вигляд самого будинку, так і його будівництво.
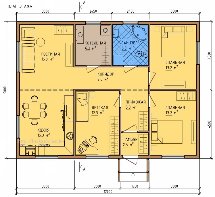
Приклад проекту одноповерхового каркасно-панельного будинку
Вибираючи проект будинку, будьте уважні і врахуйте, що каркасний будинок будується з матеріалів відразу на ділянці, а каркасно-панельні будинки за канадською технологією складаються з серії готових щитів. Їх мінуси полягають у відсутності можливості внести індивідуальні корективи, а також вимагають використання будівельного крана.
Замовляти проекти краще всього в спеціалізованих проектних бюро, які мають ліцензію на такого роду діяльність.
Після того, як були обрані основні характеристики будинку, можна приступити до вибору самого проекту, буде він індивідуальний чи типової серії. Індивідуальний проект являє собою спеціально розробляється під смаки і бажання замовника план, але коштує він набагато дорожче, ніж типовий.
Звичайно, індивідуальний проект займає більше часу на розробку, він буде саме такий, яким ви його собі уявляєте, але при цьому, ціна проекту складе близько 10% від вартості його будівництва.
Мабуть, ціна індивідуального проекту і тривалість його будівництва — єдині мінуси такого проекту. Якщо потрібно побудувати будинок протягом сезону, то краще вибрати типовий проект з великої серії, пропонованих сьогодні. Він заздалегідь продуманий, узгоджений, і його вартість буде варіюватися приблизно в районі 300-1000 доларів.
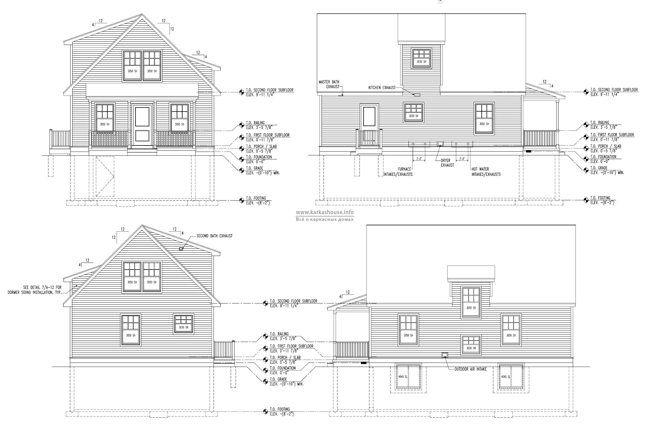
Приклад проекту каркасно-панельного будинку з наявністю мансарди
Незважаючи на те, що готовий проект типового будинку вже сконструйований, його все ж можна скорегувати. У ролі серії додаткових елементів можуть виступити балкон, веранда, можна прикрасити будинок мансардою та побудувати гараж своїми руками або, навпаки, відсікти їх з проекту.
Крім того, в готовому проекті, можна об’єднувати кімнати, наприклад: вітальню і зал, або кухню і комору, тим самим розширюючи простір для потреб. Навіть вибір кольору стін будинку, має важливе значення. В залежності від вашого вибору, він може стати схожим на англійський варіант заміського будинку або ж німецьку дачу.
Відео
Можете подивитися відео, де розповідається про зведення каркасно-панельного будинку за американською технологією.


