Купуючи проект майбутнього будинку, домовласник повинен розуміти, що існують два типи проектів – типовий і індивідуальний. Ці типи проектів розділені рядом особливостей. Але в той же час якісь елементи з типових проектів переносяться розробниками в індивідуальні і навпаки, запозичені проектні рішення з індивідуальних, починають тиражувати в типових.
Індивідуальне і типове проектування
Зміст статті
- 1 Індивідуальне і типове проектування
- 2 Можна скачати креслення каркасних будинків?
- 3 Що робити, якщо знайшли хороші креслення?
- 4. Що повинно бути відображено в кресленнях?
- 5 Що потрібно передбачити в кресленні для стін каркасного будинку?
- 6 Що включає в себе повний робочий проект будинку
- 6.1 Робочий проект будинку
- 6.2 Основні розділи робочого проекту
- 7 точно за наміченим планом
- 8 Відео
Що таке типовий проект? Це готовий проект, в якому виконана детальна проробка всіх конструктивних елементів будівлі, які проведені всі необхідні розрахунки і виготовлені робочі креслення, виконані в суворій відповідності з ними. На підставі конструкторської документації розробляються специфікації із зазначенням кількості матеріалів. Існують типові проекти, які стосуються тільки окремих елементів будівлі, наприклад, фасаду чи окремих кімнат.
Проект для котеджу, створений індивідуально, ґрунтується тільки на реалізований задум замовника. При створенні індивідуального проекту розробник займається обстеженням місцевості, проводить інженерні вишукування та здійснює моделювання розміщення будинку на відведеній ділянці землі. Треба відразу зазначити, що ймовірність зустріти копію споруди, побудованої за таким проектом надзвичайно низька.
Моделювання ділянки
Можна скачати креслення каркасних будинків?
Одним із мотивів, що спонукає людину на будівництво будинку за містом – це висока вартість житла в місті, між тим за ті ж гроші можна побудувати більш комфортний свій будинок. Один із способів зведення низькобюджетного житла – це будівництво дерев’яного або металевого каркасного будинку або дачі.
Розріз будівлі
Прийнявши таке рішення, майбутній домовласник починає активні пошуки креслень каркасних будинків. Благо в інтернеті можна знайти все. Особливу радість домовласника, викликає набір відеоінструкцій в якій, за твердженням авторів, показані всі тонкощі будівництва. Але насправді це не зовсім вірний підхід. Справа в тому, що будівельні креслення, а, так само як і інші можуть повністю і правильно прочитати тільки фахівці. У цьому випадку це інженери-будівельники. То є дуже висока ймовірність неправильного тлумачення елементів конструкції, а це крок до невірного виготовлення вузла.
Крім того, треба розуміти, що скачаний комплект креслень може бути або неповним чи це чиясь незакінчена розробка. До речі, жодних гарантій на відсутність у таких документах помилок немає.
Що робити, якщо знайшли хороші креслення?
Навіть якщо ви знайшли в інтернеті безкоштовний готовий комплект документації, він є повним, а в ньому знаходяться всі інструкції по збірці будинку, то все одно до будівництва приступати не можна. Чому? Та тому що невідомий розробник документації, а це як мінімум привід звернутися до фахівців для перевірки та адаптації знайденого комплекту документів до реальних умов ділянки, на якому буде проводитися будівництво. Необхідно перевірити можливість виготовлення фундаменту за кресленнями та його відповідності грунту.
Тобто, навіть якщо завантажені документи гарні на вигляд, без залучення сторонніх фахівців не обійтися. Адже формально, приступати до будівництва можна тільки після того, як всі креслення будуть готові та перевірені декількома фахівцями.
Що має бути відображено в кресленнях?
Креслення на каркасний будинок, це не тільки втілення задумів домовласника на папері або екрані монітора. В результаті креслення будуть частиною плану виконання будівельних робіт, який буде узгоджуватися з організаціями, що видають дозвіл на проведення будівництва.
Типовий масштаб виконання креслярської документації лежить в діапазоні від 1 до 20 до 1 до 500. При використанні першого на кресленнях буде видно все необхідне, другий масштаб застосовують при проектуванні великих будівель. При виконанні креслень необхідно використовувати стандартні позначення елементів будівельних конструкцій, кріпильних виробів і ін. до Речі, треба бути готовим до того, що в процесі будівництва доведеться виконувати деякі додаткові робочі креслення або ескізи. Це нормальне явище, насправді навіть досвідченим проектувальникам складно передбачити всі тонкощі, які виникають при будівельних роботах.
В документації на каркасний будинок немає дрібниць, але дві конструкції вимагають до себе особливої уваги – це фундамент і каркас. На підставі результатів проведених геодезистами досліджень, необхідно провести тип і конструкцію фундаменту. У цих документах мають бути розроблені заходи по недопущенню спучування фундаменту, його гідроізоляції, а також ізоляція цокольного або напівпідвального приміщення, розташованого під будинком від холодного повітря. Відповідно в кресленнях повинні бути відображені всі тонкощі монтажу конструкцій фундаменту, з обов’язковим зазначенням розмірів.
Креслення стовпчастого і стрічкового фундаменту
Особливі вимоги пред’являються до документації на сам каркас. Справа в тому, що це несуча конструкція, яка приймає на себе все навантаження, що виникає при експлуатації будівлі. Креслення розробляються тільки на підставі проведених міцнісних розрахунків вузлів каркаса, ці розрахунки є невід’ємною частиною технічної документації та в обов’язковому порядку проходять перевірку фахівцями.
Схема каркаса
Що потрібно передбачити в кресленні для стін каркасного будинку?
Будівництво стін в каркасному і каркасно-щитовомдоме має на увазі те, що в комплекті креслень в обов’язковому порядку повинні міститися креслення планування приміщень як всього поверху, так і окремих приміщень. І зовсім не важливо це одноповерховий будинок, з мансардою або гараж.
На них вказуються місця установки перегородок, які утворюють кімнати та інші приміщення.
Для будівництва доцільно застосовувати уніфіковані деталі або складальні вузли, наприклад, дверні або віконні блоки, які будуть встановлюватися в стінах і перегородках всередині будівлі.
Дійсно, буде простіше виготовити кілька блоків з однаковими розмірами, ніж така ж кількість віконних або дверних конструкцій за різними.
Поэатжный план
У робочих кресленнях необхідно вказувати розміри всіх застосовуваних деталей. Але для ясності креслення допускається вказівка лінійних параметрів простих деталей в специфікації. Тобто на кресленні у цій деталі буде вказаний порядковий номер специфікації, а всі її параметри (розміри, кількість) будуть записані в рядках специфікації. Треба відразу зазначити, що на відміну від машинобудівних креслень будівельники більш поблажливо ставляться до розмірів деталей і розмірними ланцюгами. При визначенні граничних розмірів, а також допусків на них доцільно керуватися ГОСТ 21779-821 і ГОСТ 25347-82.
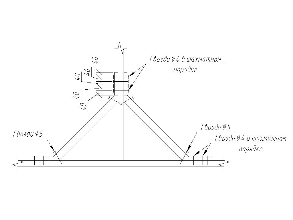
На кресленнях повинні бути зазначені місця розташування всіх додаткових елементів конструкції каркаса – укосини, упори. При цьому повинні бути вказані способи їх кріплення, як на фото.
Схема укосин
Щодо лицьовій частині будівлі креслення повинен містити максимально допустиму інформацію про розміщення стійок, віконних блоків, приєднувальних розмірів поперечних балок.
Професійні проектувальники розуміють, що на кресленні має бути рівно стільки розмірів, скільки необхідно для виконання робіт та контролю вже зроблених. Зайва кількість нанесених розмірів може призвести до плутанини і помилок.
План приміщень
Крім того, існує правило, якого дотримуються інженери все галузей. Вся технічна документація повинна тлумачитися однозначно і при її застосуванні не повинно бути різночитань.
Що включає в себе повний робочий проект будинку
Робочий проект будинку
Початок будівництва можна починати тільки після того, як скомплектована і перевірена вся документація, яка потрібна для будівництва. Робочий проект складається з наступних частин:
- Архітектурно-будівельної;
- Конструкторської;
- Схем монтажу інженерних комунікацій;
- Схем монтажу слабкострумових проводок;
- Схем розміщення електрообладнання та силової проводки.
Крім перерахованих технічних документів, в склад робочого проекту входить і кошторис на виконання будівельних робіт. Всі розроблювані документи повинні відповідати вимогами Дбн та ДСТУ.
Всі будівельні роботи виконані професіоналами або своїми руками повинні виконуватися в суворій відповідності із затвердженим проектом будинку.
Основні розділи робочого проекту
Перелік документації наведено вище, але треба розуміти, що не всі з них обов’язкові. Основними частинами вважають архітектурно-будівельну і конструкторську. Архітектурна частина визначає зовнішній вигляд будівлі, прив’язку його до місцевості, а також показує, як буде облаштована земельна ділянка навколо нового будинку. Конструкторська частина містить докладні креслення всіх елементів конструкції будівлі.
Генплан ділянки
При розробці проекту будівлі на цих частин може доводитися до 70% від вартості повного комплекту.
Для контролю над якістю виконання робіт має сенс залучати інженерів з нагляду.
Як правило – це фахівці високої кваліфікації, які можуть і провести ревізію всієї частин проектної документації, здійснити її погодження в усіх інстанціях і при необхідності вказати проектувальникам на допущені в процесі розробки помилки і неточності. До основної частини проекту можна віднести також і ту частину, в якій приділено увагу внутрішнього дизайну приміщення.
Ескіз інтер’єру
Точно за наміченим планом
Якість майбутнього будинку цілком залежить від правильності виконання робіт, тобто всі роботи повинні виконуватися в строгій відповідності з кресленнями та технологічними схемами. Всі аргументи будівельників, про те, що і так піде необхідно відразу відмітати. Ще раз повторимо, вся документація виконується відповідно до норм і правил будівництва, і їх порушення може призвести до неприємних наслідків. Це стосується всіх типів робіт і порядку виготовлення фундаменту, в тому числі і його утеплення.
Схема підлоги в каркасному будинку
Насправді, самостійне проектування будинку можна проводити, тільки володіючи прикладними знаннями в будівництві. Для тих, хто таких знань не має простіше купити готовий проект 4х6, 6х6, 6х8, 6х9, 8х8 в тій компанії, яка буде займатися будівництвом та здачею об’єкта під ключ. Наявність єдиного підрядника відразу знімає безліч питань.
Відео
Подивіться відео про комплект креслень та документів необхідних для будівництва каркасного будинку.


