Паркан з воротами є невід’ємною частиною будь-якої ділянки, на якому стоїть приватний будинок. Завдяки їм створюється особистий простір. Вони захищають від чужих поглядів і злодіїв. В цілому, за надійним парканом відчувається впевненість.
Але, якщо у вас кожен метр на рахунку, будь-то з-за розмірів ділянки або отвору у вже встановленому паркані, є прекрасний вихід. Мова йде про відкатних воріт. Їх конструкція, на відміну від орних, дає їм можливість не займати місце на ділянці. І обмеження за розмірами мінімальні. Та й їх можна не тільки купити, але і зробити своїми руками, завдяки фото і відео в мережі.
Яка їхня вартість?
Зміст статті
- 1 Яка їхня вартість?
- 1.1 На гвинтових палях
- 1.2 Ціна воріт на опорах
- 1.3 На бетонному фундаменті
- 2 Переваги перед іншими типами воріт
- 3 Креслення
- 4 Конструкція і її основні елементи
- 5 Як зробити фундамент
- 5.1 Схема бетонування
- 6 Заповнення воріт
- 7 Комплектуючі
- 7.1 З хвірткою
- 7.2 Автоматика
Відкатні ворота під ключ
Одним з головних питань є питання вартості.
У випадку з відкатними воротами вона складається з декількох параметрів, якщо ви вирішили придбати під ключ:
- Вартості закладки фундаменту, в яку входять:
- Вартості каркаса, до якої входять:
- Монтажу, вартість якого залежить від розмірів;
- Автоматики, зокрема пристрій від Came або іншого виробника;
- Вартості обробки і підключення Came;
- Вартість доставки.
При цьому, фундаменти відкатних воріт можуть бути різними, тому і ціна на них буде відрізнятися. Зазвичай такі роблять на:
Крім того, монтаж своїми руками сильно впливає на витрачені суми.
На гвинтових палях
Фундамент на гвинтових палях є простим рішенням для складних грунтів. Завдяки своїй конструкції, з якою можна познайомитися на фото, палі цього типу добре триматися в грунті, лопаті не дають висмикнути їх або витіснити грунту з-за механічних навантажень.
Конструкція відкатних воріт на гвинтових палях
Гвинтовий тип дозволяє займатися монтажем самостійно, що позитивно впливає на вартість. Важливою перевагою є те, що ворота не торкаються землі, що дає просте підключення електроніки від Came.
Найбільші витрати припадають на придбання гвинтових паль. Немає необхідності купувати палі великого діаметру, але вони повинні бути якісно зроблені. Головну увагу варто звернути на якість зварювання. Глибина вгвинчування, а отже і довжина паль, залежить від глибини промерзання грунту. Для більшості регіонів Центральної Росії достатньою вона вважається до 2,5 метрів.
Фактором, що позитивно впливає на вартість пальово-гвинтового фундаменту, є відсутність необхідності в земляних роботах або значному бетонуванні.
Ціна воріт на опорах
Самонесучі відкатні ворота
Одним з останніх писків моди в області пристрою відкатних воріт, судячи з численних фото і відео, є так звані самонесучі ворота на опорах. Їх інженерне рішення вважається найбільш складним, не гірше автоматики від Came, і разом з тим, мають ряд переваг. Зокрема, немає необхідності в направляючої, по якій рухається рейок. А значить, і немає необхідності в заливці поперечного фундаменту.
Вся конструкція являє собою роликову опору, що встановлюється на одну з колон огорожі.
Природно, монтаж на неї вимагає достатньої міцності. В цілому, особливі вимоги до міцності можуть істотно здорожити конструкцію та монтаж під ключ. Натомість, потрібно менше витрат на обслуговування.
На бетонному фундаменті
Найбільш поширеною конструкцією фундаменту відкатних воріт є бетонна. Така конструкція передбачає, що монтаж фундаменту з бетону здійснюється не тільки під стовпи — потрібен ще й поперечний фундамент під направляючу. Дізнатися більше подробиць про фундаменті можна на відео.
На практиці ж це означає, що досить велика витрата бетону, так і земляні роботи.
Ями риють завглибшки не менше метра.
Недоліком можна вважати досить тривалий час, що проходить від закладки до готовності фундаменту. Але вартість в першу чергу входить ціна бетонування і, якщо в цьому є потреба, наймання бригади, яка буде займатися монтажем. У звичайних умовах цей тип фундаменту дешевше конструкції на роликових опорах, так і легко робиться своїми руками.
Переваги перед іншими типами воріт
Як вже зазначалося, пристрій відкатних воріт має ряд переваг, які змушують все більше число власників земельних ділянок зупиняти свій вибір саме на них. І це незважаючи на більш складну конструкцію і в деяких випадках більшу ціну порівняно з орними.
- Естетичне перевага;
- Відсутність рам, які б заважали проїзду;
- Економія простору;
- Не бояться вітчизняного клімату;
- Не страждають від типових проблем розпашних воріт, таких, як провисання петель;
- Завдяки багатому вибору автоматики, в тому числі і від таких компаній, як Came, ними легко управляти.
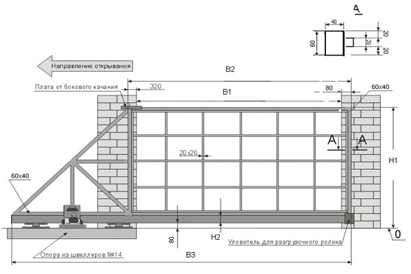
Креслення
Креслення можна подивитися на фото.
Конструкція відкатних воріт
Відкатні ворота в розрізі
Комплектація відкатних воріт
Конструкція і її основні елементи
Конструкція воріт складається з декількох основних елементів, які, як і їх монтаж, навіть можна зробити своїми руками. Пристрій їх просто. Для виготовлення більшої частини з них кращим або навіть єдиним підходящим матеріалом є метал.
Стандартні відкатні ворота складаються з:
Рекомендуємо переглянути відеоролик про монтаж відкатних воріт на гвинтових палях.
Як зробити фундамент
Фундамент під відкатні ворота
Пристрій фундаменту, природно, залежить від обраного типу. Два типи конструкції — на роликових опорах і звичайному бетонному фундаменті — мають загальні риси. Зокрема, і там, і там потрібно робити бетонування під стовпи опор, на які і проводиться монтаж. Сильно відрізняється фундамент на гвинтових палях, у чому легко можна переконатися, подивившись фото і відео.
Встановлення стовпів під опори робиться в першу чергу, а значить і фундамент під них закладається так само. Це легко робити своїми руками. Правильно вибравши місце для майбутніх опор, потрібно вирити яму.
Глибина залежить від того, як промерзає грунт. Мінімально вона становить метр.
Коли ями закінчені, до них ставляться стовпи. Вони повинні стояти рівно вертикально. За встановленими опор заливається бетон. Суміш застигає не менше тижня.
Наступним етапом є закладка фундаменту під самі ворота, якщо вибрана конструкція на бетонному фундаменті. Тут знадобляться швелер, шириною близько 20 сантиметрів, та арматура, чиє переріз досягає 1,5 сантиметрів. Шматки арматури, довжиною в метр, приварюються до швелеру, в т. ч. і своїми руками, завдяки чому виходить «банкетка».
Коли конструкція готова, риють яму, глибиною відповідної розмірами отриманої конструкції і шириною в 40 див Довжина — у половину ширини прорізу воріт.
Проводиться установка шевеллера, так, що його верх виявляється врівень із землею. Заливається бетон і до 28 днів відбувається його застигання.
На цьому закінчується виготовлення бетонного фундаменту своїми руками і починається монтаж конструкції.
Ворота на гвинтових палях
Фундамент з гвинтовими палями робиться без земляних робіт, як легко видно на відео. Ями копати не треба. Що ще більше полегшує роботу своїми руками. В потрібних точках вертикально робиться встановлення паль. До них у вигляді важелів, з двох сторін, прикріплюються по лому і вони вгвинчуються в грунт. Вгвинчування відбувається на глибину замерзання грунту, але не глибше того моменту, коли з’являється небезпека деформації або зриву лопатей. Це можна робити своїми руками, разом з помічниками.
Схема бетонування
Нижче представлена схема фундаменту під відкатні ворота.
Схема фундаменту під відкатні ворота
Заповнення воріт
Особливістю відкатних воріт є можливість використовувати найрізноманітніші матеріали для їх обробки. Дорогі і дешеві, класичні і ультрасучасні — їх можна підібрати на будь-який смак або під будь-який стиль будинку. Про це свідчать численні фото та відео.
Природно, для кожного споживача особливу роль грає ціна. Тому найбільш популярним і разом з тим дешевим є профнастил. Він виглядає сучасно, лінійка колірних рішень досить різноманітна. Сучасний профнастил досить міцний. І такі відомі бренди, як Дорхан і інші, дуже активно застосовують його в своїй продукції.
Крім профнастилу часто використовують також:
Комплектуючі
Відкатні ворота стали популярними завдяки тому, що крім базового варіанту їх можна підігнати під індивідуальні вимоги та зробити під ключ. Це може стосуватися наявності хвіртки або автоматики.
З хвірткою
Найпростіший варіант відкатних воріт не передбачає наявність хвіртки. Але, якщо її установка все ж потрібна, то споживач може обрати два варіанти: ворота з вбудованою хвірткою або окремо стоїть. Перший варіант краще всього окупати в готовому вигляді. Такі ворота роблять відомі виробники, а другий можна і своїми руками.
Автоматика
Автоматика для відкатних воріт дуже різноманітна. Існують компанії, які вже багато років роблять технічні рішення спеціально для воріт, такі як Came, і завоювали ринок. Компанії, як Дорхан, роблять вже готові відкатні ворота з електроприводом, які можна придбати під ключ.
Сучасна продукція Came та інших виробників дозволяє управляти воротами на відстані, визначає їх становище, контролює доступ до них. Завдяки виробам Came жоден злодій не зможе просто так перелізти через ворота.
Схема автоматики воріт
Установка і підключення сучасної автоматики, особливо від таких виробників, як Came відрізняється простотою. Це доступно кожному. Та й ціна не занадто велика. Незважаючи на те, що ті ж Came — італійський бренд, що їх продукція доступна більшості власників воріт. Природно, рішення відрізняються, залежно від розмірів і призначення воріт. А значить і ціна.


