Дерев’яна підлога — безперечний лідер серед підлог ХХ століття. Він абсолютно натуральний, екологічно чистий, міцний, створює затишок і комфорт в будинку, так і матеріали для нього є загальнодоступними. Більшість будівель минулого століття: «сталінки», «хрущовки», «чеський проект», всі приватні будинки і багато інших були оснащені саме дерев’яними підлогами. Враховуючи вік цих об’єктів, безперечним є те, що пора робити ремонт. Дана стаття розповість про те, як зробити ремонт дерев’яної підлоги в приватному будинку або квартирі, а також торкнеться ремонт підлоги в дерев’яному будинку і його конструктивні особливості.
Зміст
- Демонтаж старої підлоги
- Установка нових лад
- Облаштування нижнього підлоги
- Облаштування дерев’яного настилу
? Діагностика та обстеження конструкції дерев’яної підлоги
Перед початком ремонту підлоги обов’язково необхідно обстежити його і знайти згнилі або просіли дошки, оглянути лаги і балки на предмет, не з’їдені вони короїдом. Від результату пошуків буде залежати, чи можна обійтися частковим ремонтом: там прикрутити, там підстругати, або доведеться робити капітальний ремонт.
Навіть якщо дошки чистового статі здаються Вам ідеальними, все одно необхідно переконатися, що чорнова підлога також в хорошому стані. Спробуємо знайти згнилі дошки. Для цього простукиваем мостини молотком. По звуку будемо визначати стан дощок. Якщо звук глухий, значить, дошка згнила. А більш точне положення визначаємо по цвяхах — вони проржавіли під впливом гнилої дошки. Якщо непридатними стали тільки верхні дошки, тоді їх легко замінити. Якщо дошки прогнили чорнової підлоги, теж не біда, їх можна випиляти і замінити, попередньо перевіривши стан лад. А ось якщо прогнили лаги, доведеться розібрати конструкцію трохи більше, вирізати зогнилий шматок лаги і прибити до неї з двох сторін нові бруски.

Перевіряємо заставні балки, протикаючи їх шилом
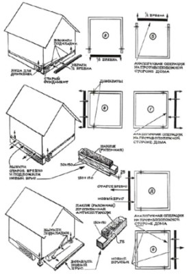
Якщо в приватному будинку від підлоги виходить неприємний запах, а деякі елементи порушені, значить, десь є гниль. Доведеться перевіряти всі елементи: і чистову підлогу, і чорнової, і лаги, і балки, і заставні вінці. Найскладніше, що навіть прогнилі заставні балки можуть виглядати ідеально, особливо якщо оглядати їх у напівтемному підлогою. Тому оглядаємо всі дерев’яні елементи і зовні будівлі, і зсередини, і з підпідлоги. Якщо дефектів « на око» не виявлено, тоді беремо шило і намагаємося проткнути заставні балки. Намагаємося робити як можна більш часті протыкающие руху. Якщо знайдемо зогнилий ділянку балки, доведеться спилювати його і замінювати. А якщо це неможливо, тоді будемо піднімати дерев’яний будинок на домкраті і замінювати заставу балку повністю.

Піднімаємо дерев’яний будинок домкратом
Звертаємо пильну увагу на торці лад. Вони починають гнити частіше і швидше, переймаючи гниль з закладних балок, які негидроизолированы або, якщо ізоляція вже зносилася від часу.
Якщо при зовнішньому огляді виявлені дрібні недоліки в вигляді щілин між мостинами, дошки «гуляють», або фарба облупилася, тоді обійдемося частковим ремонтом.
Якщо підлога скрипить, досить перебрати його і замінити деякі лаги.
Якщо підлога занадто холодний, пропускає вологу, значить, під час будівництва поспішали і економили на матеріалах, забувши утеплити підлогу. Доведеться розібрати його і заново гідроізолювати і утеплити.
? Капітальний ремонт дерев’яної підлоги
Якщо Ви є щасливим володарем дерев’яного статі віком 40 років і більше, не тіште себе ілюзіями, напівзаходами не обійтися. Далі ми розглянемо, як зробити капітальний ремонт дерев’яної підлоги своїми руками. До речі, всі роботи цілком по силам виконати самостійно. Хоча краще мати напарника, це і зручніше, швидше і веселіше.
? Демонтаж старої підлоги
Першим ділом знімаємо підлогове покриття і плінтуса. Це може бути лінолеум, паркет, дошки або сукно в залежності від проекту будинку. Якщо зірвати лінолеум або паркет — ще півбіди, то відірвати сукно і оргаліт може виявитися ой як не просто. В часи радянського дефіциту, коли навіть цвяхів потрібного розміру було не знайти, 5 мм оргаліт могли прибити 50 мм цвяхами. Цілком можливо, що доведеться помучитися. Все, що відірвали, викидаємо, воно нам уже не знадобиться.

Підриваємо і випилюємо старі дошки підлоги
Щоб демонтувати статеві дошки, шукаємо щілину ширше. Використовуючи лом або фомку, а краще і те, і інше, піддягаємо дошку і підриваємо її по всій довжині. Висмикуємо цвяхи. Таким чином, знімаємо усі дошки підлоги і чистової і чорнової. Перед нами повинні постати лаги у всій своїй красі. Ну, або те, що від них залишилося. Приготуйтеся до найгіршого. Швидше за все, Ви побачите, що чорнову підлогу просто висів у повітрі над грунтом і залишками згнилих перекриттів.
Важливо! Цілком можливо, що лаги з’їдені короїдом. Адже раніше не було спеціальних просочень. Обов’язково перевіряємо це.
Якщо лаги все ж залишилися, демонтуємо їх, відкручуючи від балок і опорних стовпчиків.
На цьому демонтаж старої підлоги може бути закінчений, і можна приступати до укладання нового підлоги.

Схема заміни балок з використанням домкрата для підняття будинку
Але якщо ми ремонтуємо дерев’яний будинок або баню, в якій лаги спираються і кріпляться до закладних балок, які вже прогнили, тоді без помічників і техніки не обійтися. Для роботи з опорними точками нам доведеться піднімати будинок на домкраті і замінювати всі балки на нові.
? Установка нових лад
Перед безпосередньою установкою лад необхідно визначитися, чи нам потрібно осушувати підвал або підливати фундамент. Якщо в підполі сиро, осушення підпідлоги істотно збільшить терміни ремонту підлоги.
За необхідності додаємо фундамент у раскрошившиеся місця.
Оглядаємо стан опорних стовпчиків під лаги: всі елементи конструкції повинні бути у хорошому стані. Якщо таких не було, для більшої надійності конструкції монтуємо стовпчики:
- Намічаємо на закладних балках місця кріплення лаг. Натягуємо шнур в поздовжньому і поперечному напрямку, визначаючи кути майбутніх стовпчиків.
- В намічених місцях знімаємо грунт. Утрамбовуємо, укладаємо поліетиленову плівку для гідроізоляції фундаменту, насипається щебінь, ще раз утрамбовуємо.
- Встановлюємо армуючу сітку на 10 см вище щебеню.
- Монтуємо опалубку на 10 см вище рівня ґрунту.
- Заливаємо бетон. Фундамент під стовпчики повинен виступати на 5 см вище грунту. Чекаємо, поки висохне, 2-3 дні.
- Гидроизолируем бетон.
- Укладаємо цегли в два ряди на цементну суміш.
- Гидроизолируем цеглини, прокладаємо тепло і звукоізоляцію.

Схема установки лаг на опорні стовпчики
Для лаг купуємо брус прямокутного перерізу. Краще, якщо висота лаги буде в 2,5 рази більше ширини. Але якщо купити брус 200*200 мм, теж добре. Можна використовувати деревину хвойних порід: сосни, ялини, ялиці. Вологість повинна бути 18-20%.
Важливо! Всі дерев’яні конструкції: балки, лаги, статеві дошки обробляємо антисептиками проти жучків і грибків.
Укладають лаги на балки опорні стовпчики. Починаємо з «маякових лад», крайніх від стін. Потім відступаємо від них на 2 м і укладаємо ще лаги.
Важливо! Обов’язково перевіряємо горизонталь лад рівнем. Якщо в якомусь місці лага виступає за рівень, спилюємо зайве рубанком. Якщо десь лага прогинається, встановлюємо під неї підкладку.
Укладаємо все лаги і прикручуємо їх до балок саморізами. Для закріплення лад до опорних стовпчиків використовуємо куточки. Просвердлюємо отвори заздалегідь, щоб не розщепити лагу. З боку дерева закріплюємо саморізами, з боку цегли — дюбелями.
Важливо! Допускається відхилення рівня лад в 1 мм на 1 м.
? Облаштування нижнього підлоги

Дошки нижнього підлоги прибиваємо знизу до лагів
«Нижній» пол нам знадобиться, щоб було, куди укладати утеплювач. Для цього беремо добре просушені дошки 20-30 мм завтовшки.
Зручніше і легше кріпити дошки нижнього підлоги поперек лаг, закріплюючи їх безпосередньо до брусків.
Для цього всі роботи доведеться виконувати з підпідлоги, може навіть, лежачи на землі. Дошки прибиваємо або прикручуємо саморізами до лагів.
Важливо! Якщо з якоїсь причини вирішили укладати дошки підлоги вздовж нижнього лад, тоді доведеться прибити до лагів бруски, на які і будуть кріпитися нижні дошки.
Перевіряємо пів на наявність щілин. Якщо такі виявили, зафарбовуємо їх монтажною піною.

Укладаємо утеплювач між лагами
Після того, як «нижній» підлога готова, укладаємо шар гідроізоляції і утеплювача. Так як простір між лагами залишилося порожнім, у нього і будемо укладати мати утеплювача: кам’яної вати мінеральної вати, базальтового волокна або іншого матеріалу.
? Облаштування дерев’яного настилу

Настилаємо чистову підлогу зверху гідроізоляції і утеплювача
Для «верхнього» або чистового статі купуємо добре просушену деревину вологістю не більше 12%. Товщина дошки має бути близько 40 мм. Зручніше, якщо дошка буде шпунтована.
Настилати підлогу починаємо з кута кімнати, далекого від дверей. Першу дошку укладаємо шпунтом до стіни на відстані 10-12 мм від неї. Закріплюємо саморізами гребінь до балок та лагів таким чином, щоб приховати капелюшок самореза плінтусом. Із зворотного боку вкручуємо саморізи в паз під кутом 45°.
Всі інші дошки вставляємо гребенем в паз, з боку паза прикручуємо саморізами.
Важливо! Якщо довжина дощок настилу менше довжини кімнати, тоді їх доведеться укладати «вразбежку», тобто зі зміщенням на півметра, щоб стики торців у ряду не збігалися.
Всі дошки прикручуємо до всіх лагів без винятку. Якщо купили нешпунтовані дошки, тоді для монтажу використовуємо клини і підкладки.
Важливо! Напрямок річних кілець чергуємо в кожному ряду.
Якщо плануємо залишити покриття підлоги дерев’яним, тоді настил необхідно відшліфувати і покрити прозорим лаком або фарбою. Якщо збираємося укладати лінолеум, тоді чистову підлогу вирівнюємо фанерою або ДСП. А зверху настилаємо лінолеум, ламінат або паркет.
? Ремонт дерев’яної підлоги в квартирі
Пристрій дерев’яної підлоги в квартирі відрізняється від підлоги в приватному будинку тим, що лаги укладаються на бетонну підставу, а не по грунту. Тому технологія ремонту таких підлог у квартирі буде трохи відрізнятися.
Першим ділом демонтуємо стару підлогу, знімаємо дошки підлоги і демонтуємо лаги. Під ними ми повинні побачити бетонну основу. Ретельно очищаємо його від сміття і пилу.

Лаги дерев’яної підлоги в квартирі укладаються на бетонну основу. Очищаємо його від пилу та сміття
Обов’язково робимо цементну стяжку або стяжку самовирівнюється сумішшю. Грунтуємо поверхню і укладаємо гідроізоляцію. Можна використовувати поліетиленову плівку 200 мікрон, стелити смугами і стики склеювати скотчем.
Зверху гідроізоляції укладаємо звукоізоляцію. Можна використовувати пробку, ДВП, руберойд, гуму або спінений поліетилен.
Укладають лаги. Закріплюємо їх дюбелями.
Важливо! Якщо використовуємо брус менше довжини кімнати, тоді укладка повинна проводитися «вразбежку».
Між лагами укладаємо утеплювач. Зверху настилаємо статеві дошки.
? Як усунути скрип мостин
Будь дерев’яну підлогу рано чи пізно починає скрипіти. То це місце дуже часто використовується, то просто мостини розсохлися, чи лаги розщепилися. Причин може бути багато. І настил зверху фанери може не вирішити проблему, а тільки відстрочити її рішення.
Скриплять мостини тоді, коли вони нещільно прикріплені до лагів. Усунути причину можна кількома способами.

Вбиваємо клин між мостиною і лагой знизу
Спосіб 1. Якщо є можливість доступу до підлоги знизу, наприклад, коли підлога є стелею підвального приміщення, тоді можна закріпити мостину знизу. Для цього одна людина спускається вниз, а інший ходить по скрипучему підлозі. Таким чином, визначається «скриплять» дошка. Знаходимо місце, де утворилася щілина між дошкою і лагой або балкою, і вбиваємо в неї дерев’яний клин.

Закріплюємо дошки шурупами під кутом
Спосіб 2. Якщо доступу знизу немає, тоді зверху вкручуємо шуруп під кутом. Для цього засверливаем отвори у всіх лагах і прикручуємо дошки шурупами. Капелюшки шурупів зашпаклевываем. А коли шпаклівка висохне, шліфуємо поверхню.
Спосіб 3. Якщо причина скрипу — тертя дощок один про одного, тоді потрібно пройтися по підлозі і знайти «причинні» місця. Потім щілини між мостинами засипати тальк або графіт або вбити дерев’яні клини.
? Як усунути прогинання мостин підлоги
Найчастіше причиною прогинання мостин є те, що їх настелили не досить просушенными. З часом деревина зсохнулася, з’явилися щілини, дошки почали «гуляти» і прогинатися під вагою людини або меблів. Способів вирішення проблеми декілька.

Проштовхуємо шнур, змочений в клеї ПВА, між мостинами
Спосіб 1. Купуємо товстий плетений синтетичний шнур (мотузку). Просочуємо його столярним клеєм або клеєм ПВА. Заштовхуємо шнур між мостинами до середини товщини дошки. Готуємо шпаклівку з клею ПВА і тирси. Попередньо просіваємо тирсу, видаляємо з них уламки кори і сміття. Розмішуємо суміш до густоти сметани. Заповнюємо шпаклівкою щілини. Після того, як клей підсохне, зрізаємо зайве ножем. Після висихання, через 1-2 дні, підлогу можна фарбувати.

Заповнюємо щілини між мостинами шпаклівкою
Спосіб 2. Якщо причиною прогину мостин є рідко розташовані лаги, тоді будемо скріплювати статеві дошки між собою. Готуємо круглі довгі дерев’яні палички або відрізки сталевого дроту великого діаметру. Довгим свердлом засверливаем отвори в половицах під великим кутом таким чином, щоб отвір проходило через одну половицю і до половини заходило на сусідню. В отвір вставляємо палички. Починаємо свердлити в шаховому порядку, спочатку в одній половиці, потім сусідньої. Після того, як всі палички будуть вставлені в отвори, зашпаклевываем щілини, як у попередньому способі.
Важливо! Якщо шканты-палички стирчать з отворів, спилюємо зайве і зашпаклевываем.
? Як провести часткову заміну статевих дощок

Підчіплюємо дошку монтуванням, спираючись на брусок
Бувають ситуації, коли в заміні потребують тільки кілька дощок або навіть всього одна, а інші в хорошому стані. Що робити в такому випадку:
- Якщо потрібно замінити не всю дошку, а тільки пошкоджену ділянку, шукаємо, де знаходиться лага.
- В щілину просовуємо фомку, піддягаємо дошку.
- Піднімаємо її на достатню висоту, щоб просунути фіксуючу підкладку.
- Випилюємо ушкоджену ділянку.
Важливо! Ділянка обов’язково повинен обома кінцями доходити до середини лад. Якщо вирішили знімати всю дошку, тоді випилюємо всі ділянки до повного видалення.
- Вирізаємо ділянку дошки з нової деревини, використовуючи старий фрагмент в якості шаблону.
- Укладаємо новий фрагмент, закріплюємо саморізами до лагів.
Важливо! Якщо настил був виконаний з шпунтованих дощок, тоді технологія заміни набагато складніше.
Незважаючи на те, що дерево — матеріал довговічний, за ним повинен бути хороший догляд. Щоб не робити ремонт дерев’яної підлоги занадто часто, не забувайте обробляти деревину антисептиками, які запобігають її гниття і поїдання короїдами. Час від часу перевіряйте кріплення дощок, не розхиталися. І відкривайте чистову підлогу захисним матеріалом, наприклад, лаком.



