Стіл зі спеціальними отворами являє собою зручний варіант закріплення ручної дискової пилки певного діаметру.
Конструкція має ряд очевидних переваг. Вона дає можливість виконувати набагато більший обсяг роботи з мінімальними зусиллями і з відмінною точністю</strong>.
Стаціонарне розташування складного інструменту дозволяє забезпечити високий рівень безпеки для персоналу і збільшити термін служби пристрою.
Саморобний стіл під ручну циркулярну пилку вигідний для застосування в тих випадках, коли обсяги робіт не настільки великі і купувати спеціальне обладнання немає сенсу. Вартість пристрою, найчастіше виготовляється з підручних матеріалів, набагато нижче промислового продукту.
Розповімо, як зробити потрібний стіл своїми руками.
Яким повинен бути стіл для дискової пилки
Зміст статті
- Яким повинен бути стіл для дискової пилки
- Матеріали та інструменти для виготовлення
- Як зробити стіл для дискової пилки
- Деталі столу, їх розміри, креслення
- Збірка
- Корисні поради
Складність і небезпека робіт, які належить виконувати на саморобному столі для дискової пили, передбачає в першу чергу турботу про міцність пристрою, його стійкості до різноспрямованих навантажень.
ВАЖЛИВО! Дискова пила при роботі викликає значні вібрації, її потужність досить велика. Тому при проектуванні слід в першу чергу врахувати питання стійкості.
До інших важливих характеристик пристосування відносяться наступні параметри.
- Рівна робоча поверхня, наявність огороджень.
- Доступність засобів управління, особливо можливості швидко відключити електроживлення.
- Наявність всіх пристосувань, необхідних для якісної і продуктивної роботи. А саме: паралельного упору, косинця, каретки, приладів для освітлення, для очищення робочого місця від стружки і пилу.
Головне завдання для розпилювального столу — виконання якісних поперечних і поздовжніх розпилів матеріалів з різних порід деревини твердих (дуба, ясена), м’яких (липи, сосни).
При цьому важливою є можливість високопродуктивної роботи, особливо в пристосованих умовах — на будівельній ділянці, в гаражі або в сараї.
Матеріали та інструменти для виготовлення
Для виготовлення каркаса зазвичай застосовують металевий кутник або профільну трубу з уз вуглецевих сталей. Відмінно підходить брус з міцної деревини, особливо дуба, ясена, клена. Хорошу стійкість на різних поверхнях і стійкість до навантажень забезпечують також клеєні матеріали високої якості.

Вимоги до робочої поверхні включають стійкість до вигину, наявність рівної гладкої поверхні, достатню слизькість. Тому найчастіше її виготовляють з ДСП, МДФ або металевого листа.
Кріплення як пили, так і для допоміжних пристосувань краще нержавіючий. Пристрої для підведення електроживлення повинні бути в робочому стані.
Як зробити стіл для дискової пилки
Підготувавши все необхідне, можна приступати до роботи.
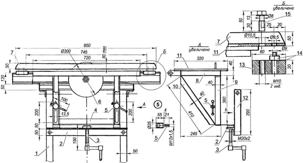
Деталі столу, їх розміри, креслення
Ручна дискова пила, встановлювана в стіл, повинна кріпитися надійно і міцно. Відповідно, потрібна стільниця з негнущегося матеріалу. Якщо це дерев’яна плита, її товщина повинна складати не менш 20 мм для малопотужних пристроїв.

Довжина і ширина конструкції вибираються з урахуванням особливостей експлуатації та параметрів пилки. Для пристрою потужністю до 1,2 кВт зазвичай досить 1000х600 мм.
Висота конструкції повинна бути зручною для роботи. Вона підлаштовується під конкретного виконавця, це приблизно 650-650 мм.
Отвір для пилки розміщується зі зміщенням в праву сторону по ширині і в центрі по довжині. Для установки і кріплення паралельного упору і косинця слід виготовити відповідні пази в стільниці.
Збірка
Спочатку виготовляється підстава вироби.
Важливо! Якщо використовується металевий кутник або профільна труба, слід забезпечити надійну і міцну зварювання.
Після закінчення зварювальних робіт слід провести очищення та фарбування виробу. Дерев’яну конструкцію кріплять болтами, гвинтами-саморізами, іншими пристосуваннями.
Стільниця кріпиться до основи зазвичай болтами, головки яких втоплені відносно рівня робочої поверхні.
Корисні поради
- Рекомендується подбати про хорошому освітленні робочого столу.
- Світильники встановлюють праворуч спереду, на достатній висоті.
- Стіл встановлюється на рівну поверхню. Про її підготовки слід подбати завчасно.




