Для опалювального обладнання, яке встановлюють у приватних будинках, застосовують практично всі відомі види палива — дрова, торф, вугілля, електрику, природний газ. В нашій країні, з її ресурсами, газовий вид обладнання став одним з найпопулярніших. Його відрізняє досить низька ціна, відносна доступність. Конструкції котлів, які використовують для опалення будинків, відрізняються простотою експлуатації і безпекою в роботі, але, зрозуміло, при дотриманні ряду правил.
Принцип дії котла
Зміст статті
- Принцип дії котла
- Правила розміщення котла
- Правила користування газовим котлом
- Інструкція по розпалу
- Як правильно вимкнути котел
- Самостійна діагностика
- Захист від замерзання
- Що робити, якщо з’явилися несправності
- Загальні правила безпеки
Нагрівачі, які працюють на газовому паливі, можуть відрізнятися один від одного конструкцією, технічними характеристиками, всі вони використовують один принцип – нагрівання робочої середовища опалювальної системи з допомогою палива, що згорає, в нашому випадку природного газу.
Газ використовують не тільки для опалення приміщень, але і для нагрівання води. Для цього застосовують або водяні колонки, або двоконтурні котли. Обладнання, яке застосовують в наші дні, оснащують високоефективними системами безпеки — вони тримають під контролем процес спалювання газу. Але, тим не менше, існують обов’язкові до виконання, правила використання газового обладнання та їх дотримання може стати гарантією безпеки.
Перед запуском устаткування в експлуатацію користувач повинен переконатися:
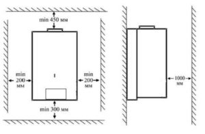
Правила розміщення котла
Площа приміщення, в якому встановлений газовий обігрівач, повинна бути не менше 7,5 кв. м. Мінімальна відстань між підлогою і стелею не повинно бути менше 2,2 м. у приміщенні повинно бути встановлене вікно, через яке надходить вуличне повітря.
Двері приміщення повинні відкриватися в бік вулиці. Неприпустимо використовувати в котельному приміщенні вимикачі, їх необхідно встановлювати за його межами.
Приміщення, в якому буде експлуатуватися котельне газове обладнання повинно бути обладнане припливно-витяжною вентиляцією. Її продуктивність повинна становити 15 куб. м повітря на один куб. м витраченого газу.
При монтажі котельного пристрою необхідно витримати певну відстань між ним та іншими предметами. Так, до предметів, виконаних з горючих матеріалів має становити понад 250 мм. До елементів, які виготовлені з вогнетривких матеріалів відстань, повинно бути 50мм.
Від труб димовідводу ці відстань повинні становити 400 і 150 мм відповідно. Перед монтажем газового котла необхідно привести приміщення в порядок, зокрема, підлога повинна бути рівною без жодних ухилів.
Від димовідводу до горючих частин — 40 см, до вогнетривких — 15 див. Пристрій монтують на бездоганно рівної площини, без ухилів.
Правила користування газовим котлом
Розглянемо, як правильно користуватися газовим котлом.
Інструкція по розпалу
Один з вузлів конструкції газових котлів, яким вони відрізняються один від одного – система розпалу. Тому при запуску котлів різного типу можуть існувати певні тонкощі. Перш ніж приступити до запуску пристрою в експлуатацію необхідно вивчити інструкцію по експлуатації. Як послідовність розпалювання виглядає так:
1. Візуальний огляд системи на предмет наявності протікання. Для цього термостат виставляють на максимум. В такому випадку відбувається автоматичне перемикання.
2. При виконанні цієї операції котел повинен бути підключений до електромережі. Після того, як почне працювати, почується невеликий шум і після наповнення системи теплоносіїв спрацює автоматичний підпал системи і котел вийде на встановлені режими експлуатації.
Як правильно вимкнути котел
Якщо протягом певного часу, використання котла не планується, то має сенс його відключити. Першим ділом закривають вентиль подачі газу. Встановлена автоматика управління та насоси повинні бути знеструмлені. Зрозуміло, не можна забувати про перекриття подачі теплоносія і води, якщо він застосовується для її нагріву. Якщо очікується, що під час простою можливе падіння температури нижче нуля, то доведеться зливати воду.
ДОВІДКА! Для відключення котла можна запросити майстрів з обслуговуючої організації.
Самостійна діагностика
Експлуатація газового обладнання буде значно спрощено, якщо в ньому передбачена система самостійного діагностування. Більшість виробників вже досить давно встановлює подібні системи на свою продукцію. Повідомлення про помилки виводять на вбудований монітор. У окремих виробників, помилка А7, говорить про несправність датчика температури. Самодіагностика газового обладнання спрощує його експлуатацію. Розшифровка кодів, які відображаються на моніторі, зазвичай приводять в керівництві по експлуатації.
Захист від замерзання
Одне з ключових правил безпечної експлуатації газового обладнання – це гарантія наявності мінімальної температури робочого середовища, яка не дозволить їй замерзнути. Якщо вода, залита в систему опалення, замерзне, то це призведе до непоправних наслідків, зокрема, розриву радіатора.
У більшості моделей, експлуатованих в наші дні, постійного нагляду за станом теплоносія. У них передбачена захист від замерзання, один із компонентів – циркуляційний насос, який включається для забезпечення примусового руху води (теплоносія) за системою. Як правило, він включається в автоматичному режимі по досягненні водою температури на 10 градусів. Якщо в силу певних причин, що температура впала ще нижче, то крім насоса включається допоміжний нагрівач, підігріваючий воду до заданого рівня, наприклад, 18 градусів.
ДОВІДКА! Щоб уникнути промерзання труб, в опалювальну систему заливають суміш води і гліколя, зрозуміло, можливість використання такого рішення може бути вказана в керівництві по експлуатації.
Що робити, якщо з’явилися несправності
Навіть в ході правильної експлуатації котельного обладнання можуть виникати певні проблеми. У деяких котлах можуть відбуватися такі перебої:
- перегрів котла;
- відмовив датчик температури;
- під час роботи котел працює дуже шумно.
Як правило, деякі поломки можуть бути викликані порушеннями режимів експлуатації, заводськими дефектами, падінням тиску в газопроводі, перепад напруги в живильної мережі, помилки, допущені під час установки газового котла.
Деякі власники газових пристроїв намагаються вирішити свої проблеми самостійно, але доцільніше викликати фахівців з обслуговуючої організації.
ВАЖЛИВО! При появі запаху газу треба зупинити роботу котла і викликати фахівців.
Загальні правила безпеки
Виробники газового опалювального обладнання приділяють багато уваги його безпеки, незважаючи на це, устаткування цього класу може стати джерелом небезпеки. Пожежний департамент МНС не втомлюється постійно говорити про запобіжні заходи, зокрема, неприпустимо набувати газове опалювальне обладнання в компаніях, які не володіють відповідною ліцензією. В комплект поставки повинно входити керівництво чи інструкція з експлуатації.
Монтаж устаткування і його запуск в експлуатацію можуть тільки працівники відповідних організацій. Подібне устаткування повинне проходити перевірку технічного стану. Як правило, це роблять один раз у рік.
У котельні неприпустимо зберігання предметів, що не мають відношення до експлуатації або обслуговування встановленого обладнання. І ще, верхня межа нагрівання теплоносія не повинна перевищувати 90 градусів.


