Незважаючи на те що в нашій країні реалізується програма масової газифікації, опалювальні прилади, що працюють на дровах, не втратили своєї актуальності. По цю пору, навіть в елітних заміських будинках можна зустріти котли, що працюють на дровах.

Особливості виготовлення дров’яних котлів тривалого горіння

Зміст статті

  • Особливості виготовлення дров’яних котлів тривалого горіння
  • Як зробити дров’яної котел для водяного опалення своїми руками
    • Що знадобиться для роботи
    • Покрокове керівництво по виготовленню дров’яного котла з водяним контуром
  • Креслення варіантів виготовлення котла на дровах
  • Важливі поради по виготовленню водяного котла на дровах своїми руками

Котельне обладнання, яке працює на дровах – це досить популярний спосіб забезпечення автономного опалення будівель і споруд різного типу. Такі пристрої цілком можливо виконати своїми руками, для цього будуть потрібні знання в зварювальному справі, інструменти та креслення.

Як зробити дров’яної котел для водяного опалення своїми руками

Самостійне виготовлення дров’яного котла для опалення потребує від майстра проведення деяких підготовчих заходів. Зокрема, потрібно намалювати ескіз майбутнього виробу. Він може уявити собі майбутній обсяг робіт та скласти перелік необхідних матеріалів і інструменту.

ВАЖЛИВО!

ДЛЯ ВИГОТОВЛЕННЯ КОРПУСУ КОТЛА ДОЦІЛЬНО ВИКОРИСТОВУВАТИ КОНСТРУКЦІЙНУ СТАЛЬ ТОВЩИНОЮ 3-5 ММ. ВИКОРИСТАННЯ АРКУШІВ З МЕНШОЮ ТОВЩИНОЮ МОЖЕ ПРИЗВЕСТИ ДО ДЕФОРМАЦІЇ КОНСТРУКЦІЇ, ЩО ВИНИКАЄ ПІД ДІЄЮ ВИСОКОЇ ТЕМПЕРАТУРИ.

Перед тим як приступити до збірки, крім ескізу потрібно розрахувати ухил, під яким будуть встановлюватися труби, які подають теплоносій і гарячу воду. Крім цього, домовласник повинен визначити місце, в якому буде встановлений котел. Воно повинно відповідати вимогам пожежної безпеки. Зокрема, між котлом і стінами дерев’яного будинку необхідно встановити теплоізоляційні прокладки, а перед топкою потрібно укласти на підлогу лист металу. У приміщенні котельні можна буде встановити розширювальний бак, між котлом і баків необхідно залишити певну відстань.

Для відведення відходів горіння необхідно обладнувати комин.

Крім місць під установку казана і розширювального бака, домовласник повинен визначити місце для зберігання палива.

Що знадобиться для роботи

Для самостійного виготовлення котла для опалення будуть потрібні наступні матеріали:

  • сталевий лист товщиною 3-5 мм;
  • труби із сталі;
  • заздалегідь придбані дверцята, колосник, заслінка.

Для виготовлення складних котлів може знадобитися наявність певної запірної арматури – кранів, клапанів тощо Для забезпечення контролю над робочими параметрами котла буде установка датчиків тиску і температури. Для забезпечення руху теплоносія має бути передбачено використання циркуляційного насоса.

З інструмента будуть потрібні:

  • зварювальний апарат і електроди;
  • кутова шліфувальна машинка, вона знадобиться для розкрою листового металу, і зачистки зварних швів;
  • лінійка, рулетка, слюсарний кутник.

Роботу по збірці печі необхідно виконувати на підготовленому місці. Тобто ніщо не повинно створювати перешкод при виконанні робіт.

Покрокове керівництво по виготовленню дров’яного котла з водяним контуром

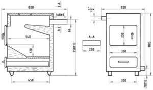
В якості прикладу розглянемо виготовлення котла, який зображений на малюнку.

 

Малюнок 1. Ескіз.

Виготовлення котла подібного типу можна розділити на дві фази.

  • Виготовлення топки.
  • Виготовлення корпусу.
  • В першу чергу необхідно виконати заготовки для виготовлення котла. Для цього можна використовувати кутову шліфмашинку, з встановленим на неї відрізним кругом. Але, відрізання металу не може дати того якості кромок, яке може забезпечити відрізка металу на механічних ножицях (гільйотині). Тому має сенс домовитися в організації, де буде купуватися метал про розкрої листа в потрібний розмір.

    При виготовленні котла з листа товщиною більше 4 мм, на кромках потрібно виготовлення фасок. Їх розміри визначені в ГОСТ, ці дані можна знайти в довіднику технолога машинобудівника. Наявність фаски забезпечить якість виконання зварного шва.

    Зварювання має сенс проводитися електродом з діаметрів 3-4 мм. Силу струму, встановлюють на пульті керування зварювальним апаратом. Вона повинна лежати в межах 180-200 А.

    НА ЗАМІТКУ!

    ПРИ ВИКОНАННІ РОБІТ ПОТРІБНО ЗАПРОСИТИ ПОМІЧНИКА, В ЙОГО ЗАВДАННЯ БУДЕ ВХОДИТИ УТРИМАННЯ ЗАГОТОВОК ПРИ ЗВАРЮВАННІ.

    Зварювання листів виконують у два етапи – спочатку, виконують «прихватку» і після перевірки можна виконувати зварювання аркушів.

    Після виконання зварювання необхідно видалити шлак і дивитися їх на предмет якості виконання робіт. На поверхні шва не повинно бути бульбашок, явного непровара, подрєзов по краях шовної зони та інших дефектів. Якість зварних швів визначено ГОСТ 3242-79.

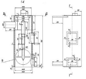
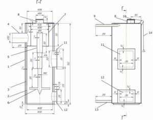
    Креслення варіантів виготовлення котла на дровах

    Інженерна думка не має меж і тому існує безліч різних моделей котлів на дровах. Нижче наведено широко поширені моделі котлів, які застосовують у домашньому господарстві.

     

    Важливі поради по виготовленню водяного котла на дровах своїми руками

    Не кожен може виготовити дров’яної котел, але якщо ви взялися за справу, будьте обережні, і прислухайтеся до наступних порад:

  • Якщо ви не володієте достатніми зварювальними навичками, доручіть цю роботу професіонала.
  • Дотримуйтеся техніки безпеки при роботі зі зварюванням і металом.
  • Перш ніж приступити до роботи перевірте правильність креслень – одна невелика помилка може зіпсувати кінцевий результат.
  • В цілому будьте уважні, і результат виправдає себе.