Невід’ємною частиною автономної системи опалення є димар. Грамотне проектування і правильний монтаж труби для відводу продуктів згоряння, дозволить уникнути появи неприємного запаху чадного газу при спалюванні дров.
Яким має бути димар для твердопаливного котла
Зміст статті
- Яким має бути димар для твердопаливного котла
- Можна зробити димар для твердопаливного котла своїми руками
- З якого матеріалу потрібно робити димар
- Які знання про димоході потрібні для виготовлення її власними руками
- Які інструменти знадобляться
- Як зробити креслення димоходу
- Як розрахувати висоту димаря для твердопаливного котла
- Діаметр димоходу для твердопаливного котла
- Як зробити димар для твердопаливного котла самостійно: покрокова інструкція
Основне призначення димовідвідної труби – видалення відпрацьованих газів після згоряння дров в топці. Здатність відводити продукти згоряння характеризується природною тягою, яку створює димар за рахунок розрідження повітря при зміні висоти від місця забору горючих газів – до рівня викиду в атмосферу. Зміна атмосферного тиску між нижньою і верхньою точкою труби вимірюється в Паскалях. Залежить ця характеристика від значення висоти і діаметра газовідвідного каналу.

Для безперебійної роботи твердопаливного обладнання, виробники котлів вказують значення розрідження для реалізованих моделей. В залежності від потужності опалювального агрегату, вимоги до димоходу змінюються: чим більше продуктивність – тим вище величина розрідження. Щоб позбавити споживача від складних розрахунків значень довжини і діаметра димохідної труби, виробники котлів вказують рекомендований діаметр і висоту каналу для відводу продуктів згоряння.
УВАГА! При самостійному виготовленні котла опалення, розмір димоходу приймають подібний показниками промислових аналогів за потужністю.
Основними вимогами до димовідвідної труби є відповідність довжини і перерізу каналу для створення необхідної тяги. Форма перерізу також впливає на якість тяги, але меншою мірою. Матеріал каналу, повинен витримувати високі температури і не піддаватися корозії. Утворений усередині труби конденсат, має руйнівні властивості.
Можна зробити димар для твердопаливного котла своїми руками
Для монтажу простого каналу не вимагається високої кваліфікації. Важливо дотримуватися правильність складання і стежити за щільністю монтажних з’єднань елементів конструкції.
Складний димар, що складається з горизонтальних каналів, викладених цеглою, призначений для використання тепла продуктів згоряння в опалювальних цілях, зажадає залучення досвідченого пічника. Самостійне вивчення особливостей кладки цегляних димоходів дозволить виконати роботу, але займе велику кількість часу.
Монтаж димовідвідного каналу з металевих труб не займе багато часу і дозволить видаляти продукти згоряння в повній мірі при правильному підборі діаметра і висоти. Виробники опалювального обладнання пропонує великий вибір металевих виробів для відводу продуктів згоряння. Вони мають різні розміри і зручний кріплення.
ВАЖЛИВО! При монтажі сполук, верхній елемент димоходу вставляють в нижній, щоб конденсат стікав по внутрішній поверхні каналу!
З якого матеріалу потрібно робити димар
Сучасні димовідвідні труб виготовляють з:
- азбесту;
- скла;
- кераміки;
- цегли;
- металу.
Азбестові димоходи давно застосовують для відводу продуктів згоряння. На початку XXI століття дослідники виявили шкідливу дію цього матеріалу на здоров’я людини при нагріванні. Враховуючи низьку вартість, азбестові труби користуються попитом до сьогоднішнього дня. Їх підключають до котлів через металеві перехідники.
Скляні канали дымоотводения мають дуже високу вартість. Керамічні труби складно монтувати. Обидва ці матеріалу рідко застосовують для відведення відпрацьованих газів, але, завдяки тому що внутрішня поверхня дуже гладка, знаходяться бажаючі спорудити такий димар.
Цегляні димохідні труби традиційно застосовуються при зведенні печей. Для з’єднання цегляної конструкції з котлом користуються металевими переходами та з’єднувальними елементами.
Наявність конденсату всередині димохідного каналу робить неефективним застосування сталевих труб. Вони швидко зношуються. Поширеним матеріалом для димовідвідних каналів є жаростійка нержавійка. Системи з такого матеріалу комплектуються всілякими перехідниками, поворотами і кріпленням, які дозволяють швидко і якісно встановити труби для відводу продуктів згоряння. Гладка внутрішня поверхня сприяє наявності хорошої тяги і робить зручним обслуговування системи. Жароміцні властивості матеріалу дозволяють витримувати високі температури при використанні вугілля.
Які знання про димоході потрібні для виготовлення її власними руками
Для самостійного виконання робіт по збірці димовідвідного каналу необхідно розуміти, що через робочий отвір повинен проходити потік повітря, що забезпечує необхідний режим горіння твердопаливного обладнання. Цей потік вимірюється у куб. м/год. Потреба зміни величини руху гарячого повітря обумовлена тепловими характеристиками котла.

Чим більше буде потужність котла, тим більша кількість повітряного потоку повинно проходити через димар. Інакше кажучи, тяга прямо пропорційна потужності опалювального обладнання. Зазвичай, для визначення діаметра та висоти димовідвідного каналу користуються спеціальними таблицями або вибирають аналогічні параметри, які рекомендують виробники котлів.
ДОВІДКА! Сніпами передбачено розрахунок тяги опалювального обладнання для відведення відпрацьованих газів. Обчислення обумовлено великою кількістю вихідних даних котла, матеріалів димоходу і зводиться до визначення розрідження, вираженого в Паскалях. Такий розрахунок не дає чіткого визначення розмірів труби.
Які інструменти знадобляться
Для виконання монтажних робіт по влаштуванню димохідного каналу знадобляться:
- вимірювальні пристрої;
- слюсарний інструмент;
- дриль, перфоратор;
- болгарка;
- мотузка;
- дерев’яні бруски.
ВАЖЛИВО! При монтажі димовідвідного каналу, з’єднання металевих елементів виконують за допомогою дерев’яних проставок. Бити по торцевій частині труб молотком заборонено.
Як зробити креслення димоходу
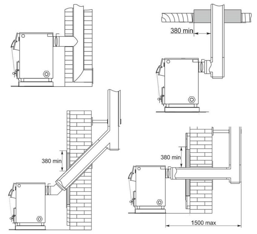
Перед монтажем димовідвідного каналу необхідно виконати ескіз і переконатися в правильності підбору задуманої конструкції. На кресленні зображують вигляд будинку збоку і вимальовують газовідвідну трубу.

При відстані від коника до труби менше 1,5 м, димар проектують вище верхньої лінії даху на 50 см. При зміні положення димовідвідного каналу до 3-х м, верхню частину встановлюють на рівні гребеня. А при більшій відстані, проводять дотичну лінію по верхній точці труби і даху. Нахил проведеної прямої повинно мати відхилення від горизонту не більше ніж на 10 град.
Крім ескізу будинку з нанесеним на нього відображенням труби для відведення відпрацьованих газів, виконують креслення проходження каналу крізь покрівлю, перекриття поверхів і з’єднання з опалювальним обладнанням. Це може бути той же, чи інший малюнок. З’єднання котла з димоходом виконують під прямим або тупим кутом по ходу руху продуктів згоряння.
УВАГА! Підключення труб через гострий кут порушить природну тягу і не дозволить димовідвідної системі нормально функціонувати. У будинку буде постійно присутній запах гару, а щоб позбутися від нього – з’єднання доведеться переробляти.
У кресленні вказують висоту і діаметр каналу для відпрацьованих газів.
Як розрахувати висоту димаря для твердопаливного котла
При обчисленні значення висоти труби (Втр) використовують спеціальну формулу, яка враховує:

- потужність котла, припустимо, Мк=30 кВт;
- необхідна статична тяга, Ст=23 Па (для побутових котлів потужністю 25-30 кВт);
- температура відпрацьованих газів Тг=530 (для дров);
- температура навколишнього середовища, То=290 К (для середніх широт).
У формулі використовують розрахункові коефіцієнти 3459 і 1,1, які є постійними величинами.
Втр = Ст*Тг*/3459*(Тг-1,1*) = 23*530*290/3459*(530-1,1*290) = 3535100/3459*211 = 3535100/729849 = 4,84 м
Отримане значення є розрахунковим для прийнятих значень статичної тяги і температури згоряння. Всі розрахунки проводять в Кельвінах.
УВАГА! Для розрахунку параметрів труби котла, що працює на вугіллі, температуру продуктів згоряння приймають на 200-400 град вище (залежно від сорти твердого палива).
Діаметр димоходу для твердопаливного котла
Діаметр каналів для відводу відпрацьованих газів роблять не менше, ніж розмір вихідного патрубка опалювального обладнання. Зменшувати або заужалі переріз труб не можна – це погіршує тягу і перешкоджає процесу горіння. Збільшення прохідного розміру допустимо, але з невеликим стрибком.
УВАГА! При самостійному виготовленні котла, діаметр патрубка роблять такого ж розміру, як у аналогів промислових виробників опалювального обладнання. Модель серійно випускаються агрегатів підбирають по потужності або подобою розмірів топки і обсягу водяної сорочки.
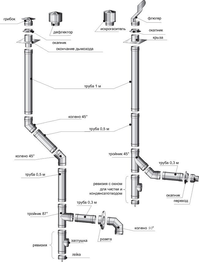
Як зробити димар для твердопаливного котла самостійно: покрокова інструкція
Наявність навичок роботи зі слюсарним і електроінструментом дозволить без праці зробити монтаж димохідних труб власними руками. Розглянемо можливість самостійного складання металевого каналу для відводу продуктів згоряння.
- У першу чергу готують всі складові елементи: відводи, переходи, подовжувачі та кріплення.
- Вирізають отвір у даху та перекриття стелі за допомогою болгарки і встановлюють кріпильний хомут в нижній частині покрівельного покриття і під стелею.
- Верхню трубу димоходу кріплять у проектованому місці, попередньо встановивши на ній захисну парасольку і водоотражатель.
- Збирають необхідну кількість метрових (стандартна довжина для окремих елементів) труб від поверхні покрівлі до перекриття. З’єднують з верхнім елементом і закріплюють під стелею. При виконанні монтажу поблизу стіни, кожен метровий відрізок димоходу кріплять за допомогою хомута.
- Після цього збирають труби з трійником, який призначений для з’єднання з котлом або подовжувачем. Потім вставляють верхню частину у з’єднувальний розтруб димохідного каналу під стелею і стикують горизонтальний розтруб котла з зібраної конструкцією. Використовуючи дерев’яні проставки, щільно збивають місця з’єднань димовідвідної системи. Переконавшись у жорсткості посадки окремих елементів, хомутами фіксують зібрану конструкцію.
УВАГА! Перед свердлінням отворів під установку хомутів, необхідно проводити попередню збірку елементів димаря для точності свердління отворів.
Відстань горизонтальних ділянок не повинна бути більше 1 метра. Якщо довжина з’єднувальних ділянок труби більше, то використовують похилі елементи монтажу.

- Порожнини навколо труб в місцях перетину з покрівлею і перекриттям, для герметичності, задувають піною.
ВАЖЛИВО! Використовують тільки термостійку монтажну піну. Температура газів усередині каналів досягає 400 град.
- Після виконання робіт перевіряють герметичність перекриття, а особливо покрівлі. Вода не повинна затікати під водоотражатель і просочуватися через пори монтажного отвору.
Дымоотводящая труба готова до експлуатації. З упевненістю можна сказати, що застосування жароміцної нержавіючої сталі є оптимальним рішенням для зведення димохідної системи. Відповідність всім вимогам, у тому числі і пожежобезпечним, дозволить використовувати зібрану конструкцію протягом тривалого періоду часу.


